发布询价单
您的位置:首页 > 产品 > 港口起重吊运及抓举机械 > 桥式起重机 > 桥式起重机 > 产品详情

河南卫华:LH型电动葫芦桥式起重机 LH型

河南卫华:LH型电动葫芦桥式起重机 LH型

普通商家

热门推荐

产品详情

产品参数

产品图片

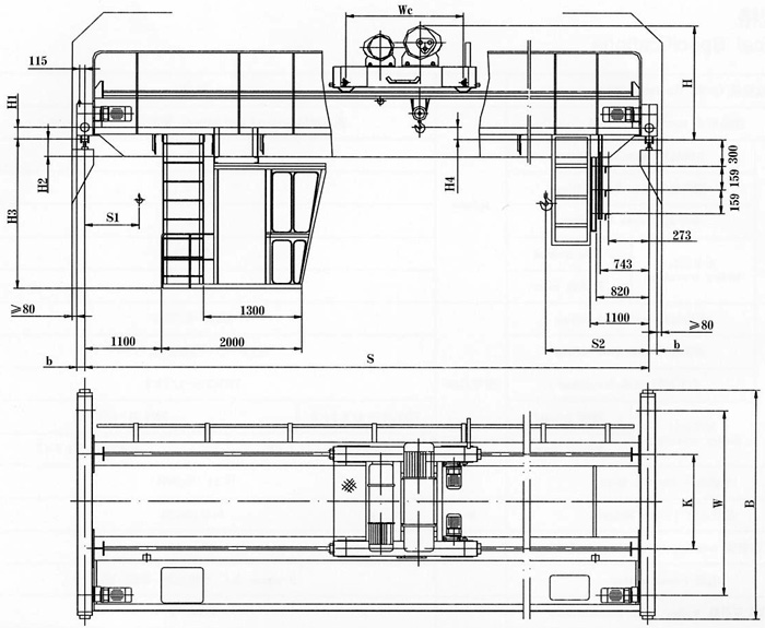
  LH型电动葫芦桥式起重机。具有外型尺寸紧凑、建筑净空高度低、自重轻、轮压小等优点。适用于机械加工车间、冶金厂辅助车间、仓库、料场、电站等的转运、装配、检修和装卸作业;它也可以代替普通双梁桥式起重机,用于轻纺工业和食品工业的生产车间。其工作类型为轻级和中级,工作环境温度为-25℃~40℃,禁止在易燃、腐蚀性介质环境中使用。

  本产品设有地面和操纵室操作两种形式。操作室有开式、闭式两种。可根据实际情况分为左或右面安装两种形式。入门方向有侧面、端面、顶部三种。以满足用户在不同的情况下进行选择。